€
EUR
£
GBP
kr
SEK
CHF
CHF
₽
RUB
$
AUD
$
CAD
¥
JPY
$
USD
R$
BRL
¥
CNY
₹
INR
Imóveis
Empreendimentos
Notícias
Crédito Habitação
Quem Somos?
Contactos
Mais
Imóveis
Empreendimentos
Notícias
Crédito Habitação
Quem Somos?
Contactos
0
0
€
EUR
£
GBP
kr
SEK
CHF
CHF
₽
RUB
$
AUD
$
CAD
¥
JPY
$
USD
R$
BRL
¥
CNY
₹
INR
Enviar imóvel a amigo
Insira um Nome
Insira um Email
Insira um endereço de email válido
Insira um Nome
Insira um Email
Insira um endereço de email válido
Li na totalidade e concordo com os termos e condições apresentados.
Saber mais »
Para poder concluir esta operação deve ler e concordar com as nossas condições
Campos obrigatórios *
Enviar
Empreendimento Além Mar
Porto, Vila Nova de Gaia
Fotos
Galeria
Descrição
Infraestruturas
Acessibilidades
Frações
Localização
Voltar
Imprimir ficha
Empreendimento Além Mar - T1 a T3 desde 249 000 €
Apresentamos-lhe o mais recente condomínio fechado para venda em São Félix da Marinha, composto por 19 apartamentos de tipologias T1, T2 e T3, com zonas comuns com jardins e zona de lazer, sala polivalente com ginásio, excelentes varandas e terraços até 140m2, com áreas brutas desde 61m2 até 260m2
Excelente Localização a apenas 200 metros da Reta do Solverde, das Praias e na fronteira com Espinho, Continente, McDonalds, entre outros.
Acabamentos:
Cozinha e Sala
➢ -Chão em parquete flutuante vinílico
➢ -Rodapés em madeira ou MDF lacado
➢ -Tetos e sancas em pladur em gesso cartonado pintado
➢ -Paredes em alvenarias de tijolo cerâmico
➢ -Pinturas com tinta tipo Esmalte Acrílico Aquoso da Neuce
➢ -Carpintaria em madeiras lacadas
➢ -Iluminação de embutir em LED
➢ -Moveis de cozinha Lacados com pedra natural ou Silestone grupo 1-2
➢ -Eletrodomésticos tipo LG gama média placa, exaustor, micro-ondas, máquina lavar roupa frigorifico e forno
➢ -Climatização c/ ar condicionado marca Tipo LG com splits normal
➢ -Caixilharia tipo Extrusal Semioculta c/ vidro duplo térmico
➢ -Estores térmicos elétricos
WC
➢- Cerâmica tipo Cinca com valor até 15.00€m2
➢ -Paredes em cerâmica tipo CINCA até 15.00€m2
➢ -Louças tipo Roca
➢ -Movel lacado suspenso com lavatório exterior
➢ -Torneiras em cromado tipo GHROU
Corredores
➢ -Chão em parquete flutuante vinílico
➢ -Rodapés em MDF lacado
➢ -Tetos e sancas em pladur em gesso cartonado pintado
➢ -Paredes em alvenarias de tijolo cerâmico
➢ -Pinturas com tinta tipo Esmalte Acrílico Aquoso tipo Neuce
➢ -Carpintaria em madeiras lacadas
➢ -Iluminação de embutir em LED
➢ -Climatização c/ ar condicionado marca Tipo LG com splits normal
➢ -Caixilharia tipo Extrusal Semioculta c/vidro duplo c/ controle solar
Quartos
➢ -Chão em parquete flutuante vinílico ou cerâmica tipo Cinca com valor até 15.00€m2
➢ -Rodapés em MDF lacado
➢ -Tetos e sancas em pladur em gesso cartonado pintado
➢ -Paredes em alvenarias de tijolo cerâmico
➢ -Pinturas com tinta tipo Esmalte Acrílico Aquoso da Neuce
➢ -Iluminação de embutir em LED
➢ -Climatização c/ ar condicionado marca Tipo LG com splits normal
➢ -Caixilharia tipo Extrusal Semioculta c/vidro duplo c/ controle solar
➢ -Carpintaria em madeiras lacadas
O aquecimento das águas sanitárias será efetuado por bomba de calor da marca tipo Daikin incluindo acumulador interior.
Passeios e Jardins
➢ -Chão em cubo de pedra ou betão afagado
➢ -Jardim em relva sintética nos terraços R/C
➢ -Paredes do edificio em capoto 60 mm revestido com argamassa á cor
➢ Tetos das varandas em marmox pintado
➢ -Cobertura invertida com telas e isolamento térmico 100mm com cobertura em godo
➢ Cerâmica
➢ -Portões em ferro pintado, com motor
NOTA:
Os acabamentos interiores poderão sofrer algumas alterações durante a construção nas madeiras, cerâmicas e iluminação sendo que estes devem respeitar preços bases definidos.
Pretendo ser contactado
Data
Hora
Nome
Insira um Nome
E-mail
Insira um Email
Insira um endereço de email válido
Contacto
Insira o seu contacto telefónico
Mensagem
Li e aceito a
Política de Privacidade
Para poder concluir esta operação deve ler e concordar com as nossas condições
Código
Insira o código apresentado na imagem
Enviar
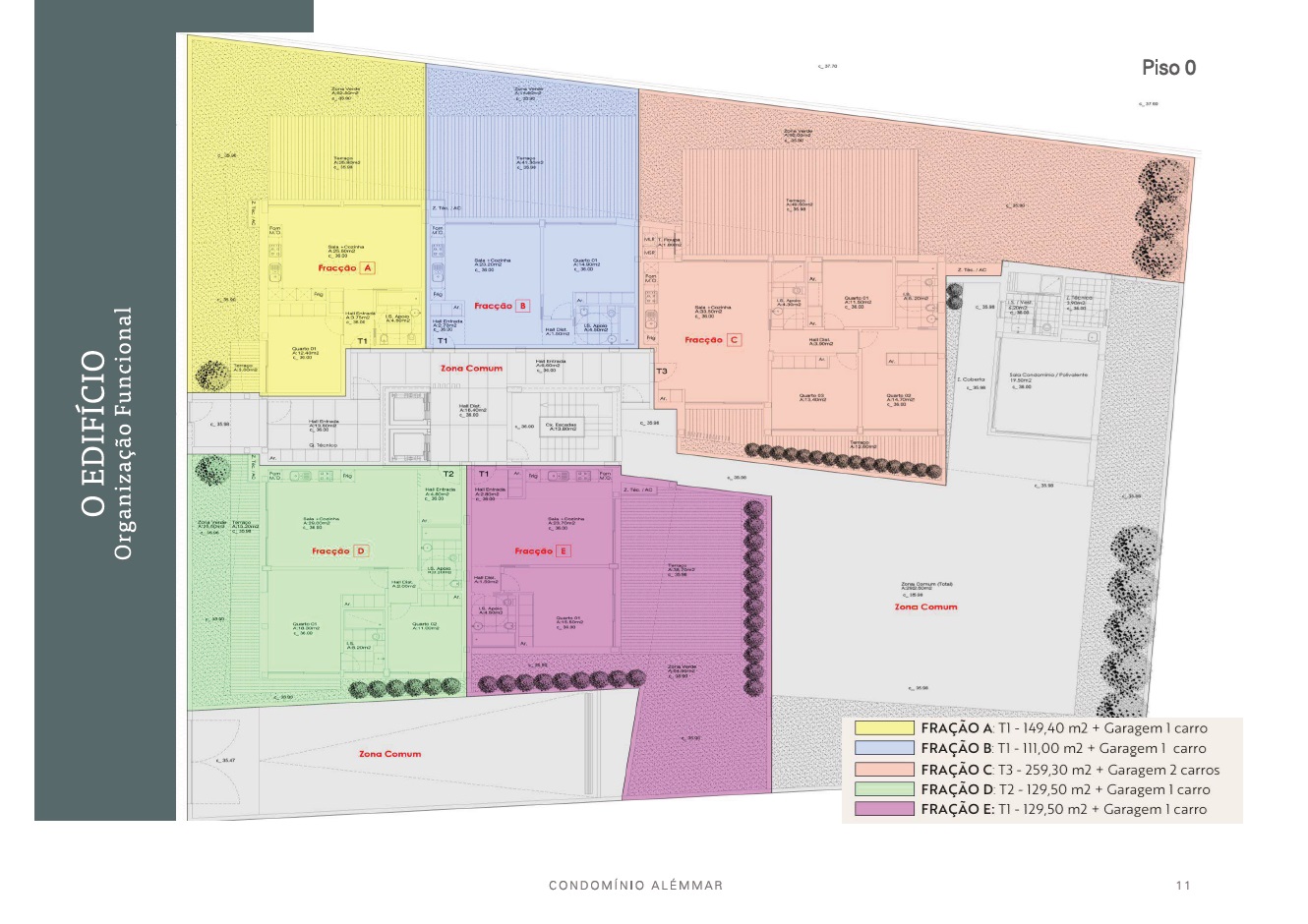
Frações
Referência
Tipo de imóvel
Fração
Andar
Tipologia
C. Banho
Garagem
Área Bruta
Estado
Preço
Disponibilidade
Planta
4043-L
Apartamento
L
2
T1
1
1
61,1
Novo
249 000 €
Disponível
4043-G
Apartamento
G
1
T1
1
1
76,1
Novo
255 000 €
Disponível
4043-B
Apartamento
B
R/C.
T1
1
1
111
Novo
260 000 €
Disponível
4043-O
Apartamento
O
2
T1
1
1
81,8
Novo
280 000 €
Disponível
4043-E
Apartamento
E
R/C.
T1
1
1
151
Novo
295 000 €
Disponível
4043-J
Apartamento
J
1
T1
1
1
81,8
Novo
Sob Consulta
Reservado
4043-A
Apartamento
A
R/C.
T1
1
1
149,4
Novo
Sob Consulta
Reservado
4043-G
Apartamento
G
1
T1
1
1
61,1
Novo
Sob Consulta
Reservado
4043-S
Apartamento
S
Último andar
T1
1
1
81,8
Novo
Sob Consulta
Reservado
4043-D
Apartamento
D
R/C.
T2
2
1
129,5
Novo
345 000 €
Disponível
4043-R
Apartamento
R
Último andar
T2
2
1
105,2
Novo
385 000 €
Disponível
4043-I
Apartamento
I
1
T2
2
1
105,2
Novo
390 000 €
Disponível
4043-F
Apartamento
F
1
T2
2
1
99,1
Novo
Sob Consulta
Reservado
4043-K
Apartamento
K
2
T2
2
1
99,1
Novo
Sob Consulta
Reservado
4043-N
Apartamento
N
2
T2
2
1
105,2
Novo
Sob Consulta
Reservado
4043-P
Apartamento
P
Último andar
T2
2
1
99,1
Novo
Sob Consulta
Reservado
4043-C
Apartamento
C
R/C.
T3
2
2
259,3
Usado
Sob Consulta
Reservado
Partilhar
Facebook
X
Pinterest
WhatsApp
Copiar link
Link copiado
Outros empreendimentos
Empreendimento Vila Nova de Gaia - Centro
Porto, Vila Nova de Gaia
Empreendimento White Stone
Porto, Maia
Pretendo ser contactado
Data
Hora
Nome
Insira um Nome
E-mail
Insira um Email
Insira um endereço de email válido
Contacto
Insira o seu contacto telefónico
Mensagem
Li e aceito a
Política de Privacidade
Para poder concluir esta operação deve ler e concordar com as nossas condições
Código
Insira o código apresentado na imagem
Enviar
Estamos disponíveis para o ajudar
Pretendo ser contactado
Data
Hora
Nome
Insira um Nome
E-mail
Insira um Email
Insira um endereço de email válido
Contacto
Insira o seu Contacto
Mensagem
Li e aceito a
Política de Privacidade
Para poder concluir esta operação deve ler e concordar com as nossas condições
Código
Insira o código apresentado na imagem
Enviar
O que é a pesquisa responsável
Esta pesquisa permite obter resultados mais ajustados à sua disponibilidade financeira.