€
EUR
£
GBP
kr
SEK
CHF
CHF
₽
RUB
$
AUD
$
CAD
¥
JPY
$
USD
R$
BRL
¥
CNY
₹
INR
Imóveis
Empreendimentos
Notícias
Crédito Habitação
Quem Somos?
Contactos
Mais
Imóveis
Empreendimentos
Notícias
Crédito Habitação
Quem Somos?
Contactos
0
0
€
EUR
£
GBP
kr
SEK
CHF
CHF
₽
RUB
$
AUD
$
CAD
¥
JPY
$
USD
R$
BRL
¥
CNY
₹
INR
Apartamento T2
Porto, Vila Nova de Gaia, Grijó e Sermonde
Voltar
\
Apartamento T2 - Porto, Vila Nova de Gaia, Grijó e Sermonde
Partilhar Imóvel
Facebook
X
Pinterest
WhatsApp
Copiar link
Link copiado
Imprimir ficha
Enviar imóvel a amigo
Insira um Nome
Insira um Email
Insira um endereço de email válido
Insira um Nome
Insira um Email
Insira um endereço de email válido
Li na totalidade e concordo com os termos e condições apresentados.
Saber mais »
Para poder concluir esta operação deve ler e concordar com as nossas condições
Campos obrigatórios *
Enviar
Fotos
Vídeos
Plantas
Seguir imóvel
Seguir imóvel
Receba um alerta quando existir uma Baixa de Preço
Nome
Insira o seu Nome
E-mail
Insira o seu email
Insira um endereço de email válido
Li e aceito a
Política de Privacidade
Para poder concluir esta operação deve ler e concordar com as nossas condições
Insira o código da imagem
Código
Enviar
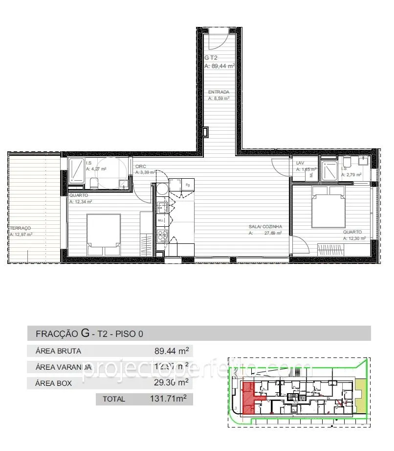
Apartamento T2, Porto, Vila Nova de Gaia, Grijó e Sermonde
305 000 €
Ref:
4212-G
2
2
2
89,44 m²
131,71 m²
89,44 m²
Apartamento T2 novo, para venda na Feiteira, Grijó, Vila Nova de Gaia, com terraço de 12.97m2, garagem box para 2 carros, inserido num novo empreendimento composto por 39 apartamentos com tipologias T1, T2 e T3, todos eles com garagem fechada para no mínimo 2 carros.
Localizado próximo do Espaço Mais, junto dos acessos à A1, a cerca de 10 minutos do centro de Vila Nova de Gaia e do Porto, sendo uma excelente oportunidade tanto para habitação própria como para uma perspectiva de investimento.
Este será um empreendimento dotado de boas áreas e acabamentos tais como bomba de calor, cozinhas equipadas, piso flutuante, instalação de ar condicionado.
Entre em contacto para mais informações e venha conhecer o seu futuro lar.
Material de acabamentos.
Mapa de acabamentos.
Exteriores
Fachada ventilada com revestimentos a cerâmica de grandes dimensões com estrutura de alumínio.
Topos das varandas em cerâmica com estrutura em alumínio.
Tetos de varandas em cerâmica com estrutura de alumínio.
Varanda com cerâmica espessura de 2cm.
Iluminação das varandas embutida nos tetos com focos Lede.
Caixilharia de alumínio.
Caixilharia de alumínio com corte térmico lacado.
Vidro duplo Guardiansun 6mm + CX 18 PRT + Laminado 4 + 4.
Estores elétricos em alumínio á cor da caixilharia com isolamento térmico.
Varandas grades de ferro lacado.
Pavimentos interiores.
Pisos com manta acústica com dobra nas paredes meeiras.
Isolamento acústico de toda a tubagem.
Pavimentos de flutuante VINIL a cor do carvalho.
Paredes interiores.
Paredes interiores em pladur com dupla placa uma de O S B e outra de pladur com estrutura dos montantes reforçada.
Paredes da casas de banho com cerâmica na zona de duche.
Manta de vedação por traz da cerâmica para vedação das infiltrações.
Paredes pintadas com tinta cinacryl.
Chão do duche em cerâmica com grelha de recolha de agua.
Resguardo de correr ao fixo.
Louça suspensa.
Movel lavatório suspenso.
Espelho retro iluminado.
Sistema de ventilação com VMC. ( fluxos cruzados).
Tetos.
Tetos falsos em pladur.
Sancas de pladur.
Iluminação Led.
Madeiras de carpintaria.
Portas até ao teto lacadas a cor ralé 9010.
Moveis roupeiros com portas de abrir lacadas até ao teto iluminação interior.
Cozinha.
Móveis de cozinha com portas e gavetões termolaminado.
Tampo de cozinha em Sileston com roda-tampo.
Equipamento Bosch
.
Frigorifico combinado.
Maquina de lavar louça.
Forno com grill.
Micro-ondas com grill.
Placa vitrocerâmica.
Chaminé de gaveta.
Bomba de calor Aríston ao equivalente.
Ar-condicionado Aríston ao equivalente.
Zona comuns.
Elevadores.
Chão da entrada principal em cerâmica.
Paredes dos halls com material ignifica.
Escadaria degraus e patamares em cerâmica.
Paredes da escadaria pintadas.
Tetos dos halls em pladur.
Pavimento das garagem com acabamento talocha do mecânico com endurecedor.
Paredes das garagem e tetos pintados a branco com lambrim ate 1,20cm cor a definir.
Pré-instalação para carregadores elétricos.
Sala de condomínio.
Rede de incêndio.
Entre em contacto para mais informações e venha conhecer o seu futuro lar.
Interessado no Imóvel?
Data
Hora
Nome
Insira um Nome
E-mail
Insira um Email
Insira um endereço de email válido
Contacto
Insira o seu contacto telefónico
Mensagem
Solicito mais informações, sem qualquer compromisso, sobre o imóvel 4212-G
Li na totalidade e concordo com os termos e condições apresentados.
Política de Privacidade
Para poder concluir esta operação deve ler e concordar com as nossas condições
Código
Insira o código apresentado na imagem
Enviar
Tipo de imóvel
Apartamento
Tipologia
2 Quartos
Objetivo
Venda
Estado
Novo
Preço
305 000 €
Ano Construção
2027
País
Portugal
Distrito
Porto
Concelho
Vila Nova de Gaia
Freguesia
Grijó e Sermonde
Zona
Vila Nova de Gaia
Simulador Crédito Habitação e IMT
Simulador de Crédito
Simulador de IMT
Valor do imóvel*
Montante de Empréstimo*
A sua idade*
Prazo empréstimo *
Prestação Mensal
0.00
€
O valor da prestação apresentada não inclui Seguro de Vida e Seguro Lar.
Indexante
0.000
%
TAEG
0.000
%
Spread
0.000
%
Prazo
0
anos
TAN
0.000
%
Simular
Inserir aqui o disclaimer. Isto é apenas uma simulação. Esta simulação de crédito não tem fins lucrativos.
Local do imóvel*
Selecione
Portugal Continental
Regiões Autónomas
Finalidade*
Selecione
Habitação Própria Permanente
Habitação Secundária ou Arrendamento
Prédios Rústicos
Outros
Valor do imóvel*
Valores complementares*
IMT
0.00
€
Imposto de Selo (0,8%)
0.00
€
Valores complementares
0.00
€
Total a pagar
0.00
€
Mais informações
Simular
Inserir aqui o disclaimer. Isto é apenas uma simulação. Esta simulação de crédito não tem fins lucrativos.
Dados de Intermediação de Crédito - (Intermediário de Crédito nº )
Saiba mais sobre a sua simulação
Nome
Campo obrigatório
E-mail
Campo obrigatório
Insira um e-mail válido
Contacto
Campo obrigatório
Observações
Isto é apenas uma simulação. Esta simulação de crédito não tem fins lucrativos.
Li e aceito a
Política de Privacidade
Para poder concluir esta operação deve ler e concordar com as nossas condições
Código
Insira o código apresentado na imagem
Enviar
Características Gerais
Gerais
Divisões
Divisões
Área
Pavimento
Paredes
Tectos
Observações
Meio Envolvente
Facilidades
Domótica
Energias Renováveis
Veja também
Porto, Vila Nova de Gaia, Santa Marinha e São Pedro da Afurada
390 000 €
Apartamento T3
390 000 €
Apartamento T3
Porto, Vila Nova de Gaia, Santa Marinha e São Pedro da Afurada
3
3
2
166,9 m²
A. Bruta
116,5 m²
A. Bruta Privada
96,61 m²
A. Útil
Contactar
Porto, Vila Nova de Gaia, Mafamude e Vilar do Paraíso
297 500 €
Apartamento T2
297 500 €
Apartamento T2
Porto, Vila Nova de Gaia, Mafamude e Vilar do Paraíso
2
2
1
136,8 m²
A. Bruta
117,15 m²
A. Bruta Privada
98,25 m²
A. Útil
Contactar
Porto, Vila Nova de Gaia, Mafamude e Vilar do Paraíso
290 000 €
Apartamento T2
290 000 €
Apartamento T2
Porto, Vila Nova de Gaia, Mafamude e Vilar do Paraíso
2
2
1
133,15 m²
A. Bruta
117,15 m²
A. Bruta Privada
98,25 m²
A. Útil
Contactar
Mais imóveis +
Estamos disponíveis para o ajudar
Pretendo ser contactado
Data
Hora
Nome
Insira um Nome
E-mail
Insira um Email
Insira um endereço de email válido
Contacto
Insira o seu Contacto
Mensagem
Li e aceito a
Política de Privacidade
Para poder concluir esta operação deve ler e concordar com as nossas condições
Código
Insira o código apresentado na imagem
Enviar
O que é a pesquisa responsável
Esta pesquisa permite obter resultados mais ajustados à sua disponibilidade financeira.