€
EUR
£
GBP
kr
SEK
CHF
CHF
₽
RUB
$
AUD
$
CAD
¥
JPY
$
USD
R$
BRL
¥
CNY
₹
INR
Imóveis
Empreendimentos
Notícias
Crédito Habitação
Quem Somos?
Contactos
Mais
Imóveis
Empreendimentos
Notícias
Crédito Habitação
Quem Somos?
Contactos
0
0
€
EUR
£
GBP
kr
SEK
CHF
CHF
₽
RUB
$
AUD
$
CAD
¥
JPY
$
USD
R$
BRL
¥
CNY
₹
INR
Apartamento T2
Porto, Vila Nova de Gaia, São Félix da Marinha
Voltar
\
Apartamento T2 - Porto, Vila Nova de Gaia, São Félix da Marinha
Partilhar Imóvel
Facebook
X
Pinterest
WhatsApp
Copiar link
Link copiado
Imprimir ficha
Enviar imóvel a amigo
Insira um Nome
Insira um Email
Insira um endereço de email válido
Insira um Nome
Insira um Email
Insira um endereço de email válido
Li na totalidade e concordo com os termos e condições apresentados.
Saber mais »
Para poder concluir esta operação deve ler e concordar com as nossas condições
Campos obrigatórios *
Enviar
Fotos
Vídeos
Plantas
Seguir imóvel
Seguir imóvel
Receba um alerta quando existir uma Baixa de Preço
Nome
Insira o seu Nome
E-mail
Insira o seu email
Insira um endereço de email válido
Li e aceito a
Política de Privacidade
Para poder concluir esta operação deve ler e concordar com as nossas condições
Insira o código da imagem
Código
Enviar
Apartamento T2, Porto, Vila Nova de Gaia, São Félix da Marinha
390 000 €
Ref:
4043-I
2
2
1
88,8 m²
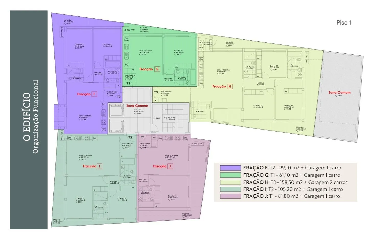
105,2 m²
88,8 m²
Apartamento T2 1º andar com vista mar para venda em São Félix da Marinha, Vila Nova de Gaia.
Neste apartamento destaca-se a varanda de 16.4m2 e lugar de garagem para 1 carro.
Inserido no novo condomínio fechado para venda em São Félix da Marinha, composto por 19 apartamentos de tipologias T1, T2 e T3, com zonas comuns com jardins e zona de lazer, sala polivalente com ginásio, excelentes varandas e terraços até 140m2, com áreas brutas desde 61m2 até 260m2
Excelente Localização a apenas 200 metros da Reta do Solverde, das Praias e na fronteira com Espinho, Continente, McDonalds, entre outros.
Acabamentos:
Cozinha e Sala
➢ -Chão em parquete flutuante vinílico
➢ -Rodapés em madeira ou MDF lacado
➢ -Tetos e sancas em pladur em gesso cartonado pintado
➢ -Paredes em alvenarias de tijolo cerâmico
➢ -Pinturas com tinta tipo Esmalte Acrílico Aquoso da Neuce
➢ -Carpintaria em madeiras lacadas
➢ -Iluminação de embutir em LED
➢ -Moveis de cozinha Lacados com pedra natural ou Silestone grupo 1-2
➢ -Eletrodomésticos tipo LG gama média placa, exaustor, micro-ondas, máquina lavar roupa frigorifico e forno
➢ -Climatização c/ ar condicionado marca Tipo LG com splits normal
➢ -Caixilharia tipo Extrusal Semioculta c/ vidro duplo térmico
➢ -Estores térmicos elétricos
WC
➢- Cerâmica tipo Cinca com valor até 15.00€m2
➢ -Paredes em cerâmica tipo CINCA até 15.00€m2
➢ -Louças tipo Roca
➢ -Movel lacado suspenso com lavatório exterior
➢ -Torneiras em cromado tipo GHROU
Corredores
➢ -Chão em parquete flutuante vinílico
➢ -Rodapés em MDF lacado
➢ -Tetos e sancas em pladur em gesso cartonado pintado
➢ -Paredes em alvenarias de tijolo cerâmico
➢ -Pinturas com tinta tipo Esmalte Acrílico Aquoso tipo Neuce
➢ -Carpintaria em madeiras lacadas
➢ -Iluminação de embutir em LED
➢ -Climatização c/ ar condicionado marca Tipo LG com splits normal
➢ -Caixilharia tipo Extrusal Semioculta c/vidro duplo c/ controle solar
Quartos
➢ -Chão em parquete flutuante vinílico ou cerâmica tipo Cinca com valor até 15.00€m2
➢ -Rodapés em MDF lacado
➢ -Tetos e sancas em pladur em gesso cartonado pintado
➢ -Paredes em alvenarias de tijolo cerâmico
➢ -Pinturas com tinta tipo Esmalte Acrílico Aquoso da Neuce
➢ -Iluminação de embutir em LED
➢ -Climatização c/ ar condicionado marca Tipo LG com splits normal
➢ -Caixilharia tipo Extrusal Semioculta c/vidro duplo c/ controle solar
➢ -Carpintaria em madeiras lacadas
O aquecimento das águas sanitárias será efetuado por bomba de calor da marca tipo Daikin incluindo acumulador interior.
Passeios e Jardins
➢ -Chão em cubo de pedra ou betão afagado
➢ -Jardim em relva sintética nos terraços R/C
➢ -Paredes do edificio em capoto 60 mm revestido com argamassa á cor
➢ Tetos das varandas em marmox pintado
➢ -Cobertura invertida com telas e isolamento térmico 100mm com cobertura em godo
➢ Cerâmica
➢ -Portões em ferro pintado, com motor
NOTA:
Os acabamentos interiores poderão sofrer algumas alterações durante a construção nas madeiras, cerâmicas e iluminação sendo que estes devem respeitar preços bases definidos.
Entre em contacto para mais informações e agende já a sua visita a este imóvel.
Interessado no Imóvel?
Data
Hora
Nome
Insira um Nome
E-mail
Insira um Email
Insira um endereço de email válido
Contacto
Insira o seu contacto telefónico
Mensagem
Solicito mais informações, sem qualquer compromisso, sobre o imóvel 4043-I
Li na totalidade e concordo com os termos e condições apresentados.
Política de Privacidade
Para poder concluir esta operação deve ler e concordar com as nossas condições
Código
Insira o código apresentado na imagem
Enviar
Tipo de imóvel
Apartamento
Tipologia
2 Quartos
Objetivo
Venda
Estado
Novo
Preço
390 000 €
Ano Construção
2025
País
Portugal
Distrito
Porto
Concelho
Vila Nova de Gaia
Freguesia
São Félix da Marinha
Zona
Vila Nova de Gaia
Simulador Crédito Habitação e IMT
Simulador de Crédito
Simulador de IMT
Valor do imóvel*
Montante de Empréstimo*
A sua idade*
Prazo empréstimo *
Prestação Mensal
0.00
€
O valor da prestação apresentada não inclui Seguro de Vida e Seguro Lar.
Indexante
0.000
%
TAEG
0.000
%
Spread
0.000
%
Prazo
0
anos
TAN
0.000
%
Simular
Inserir aqui o disclaimer. Isto é apenas uma simulação. Esta simulação de crédito não tem fins lucrativos.
Local do imóvel*
Selecione
Portugal Continental
Regiões Autónomas
Finalidade*
Selecione
Habitação Própria Permanente
Habitação Secundária ou Arrendamento
Prédios Rústicos
Outros
Valor do imóvel*
Valores complementares*
IMT
0.00
€
Imposto de Selo (0,8%)
0.00
€
Valores complementares
0.00
€
Total a pagar
0.00
€
Mais informações
Simular
Inserir aqui o disclaimer. Isto é apenas uma simulação. Esta simulação de crédito não tem fins lucrativos.
Dados de Intermediação de Crédito - (Intermediário de Crédito nº )
Saiba mais sobre a sua simulação
Nome
Campo obrigatório
E-mail
Campo obrigatório
Insira um e-mail válido
Contacto
Campo obrigatório
Observações
Isto é apenas uma simulação. Esta simulação de crédito não tem fins lucrativos.
Li e aceito a
Política de Privacidade
Para poder concluir esta operação deve ler e concordar com as nossas condições
Código
Insira o código apresentado na imagem
Enviar
Características Gerais
Gerais
Divisões
Divisões
Área
Pavimento
Paredes
Tectos
Observações
Meio Envolvente
Facilidades
Domótica
Energias Renováveis
Veja também
Porto, Vila Nova de Gaia, Santa Marinha e São Pedro da Afurada
875 000 €
Apartamento T5 DUPLEX
875 000 €
Apartamento T5 DUPLEX
Porto, Vila Nova de Gaia, Santa Marinha e São Pedro da Afurada
5
4
4
404 m²
A. Bruta
308 m²
A. Bruta Privada
299,5 m²
A. Útil
Contactar
Porto, Vila Nova de Gaia, São Félix da Marinha
268 000 €
Apartamento T1+1
268 000 €
Apartamento T1+1
Porto, Vila Nova de Gaia, São Félix da Marinha
2
1
1
77 m²
A. Bruta
65 m²
A. Bruta Privada
65 m²
A. Útil
Contactar
Porto, Vila Nova de Gaia, São Félix da Marinha
249 000 €
Apartamento T1
249 000 €
Apartamento T1
Porto, Vila Nova de Gaia, São Félix da Marinha
1
1
1
61,1 m²
A. Bruta
55,1 m²
A. Bruta Privada
55,1 m²
A. Útil
Contactar
Mais imóveis +
Estamos disponíveis para o ajudar
Pretendo ser contactado
Data
Hora
Nome
Insira um Nome
E-mail
Insira um Email
Insira um endereço de email válido
Contacto
Insira o seu Contacto
Mensagem
Li e aceito a
Política de Privacidade
Para poder concluir esta operação deve ler e concordar com as nossas condições
Código
Insira o código apresentado na imagem
Enviar
O que é a pesquisa responsável
Esta pesquisa permite obter resultados mais ajustados à sua disponibilidade financeira.