€
EUR
£
GBP
kr
SEK
CHF
CHF
₽
RUB
$
AUD
$
CAD
¥
JPY
$
USD
R$
BRL
¥
CNY
₹
INR
Fastigheter
Utveckling
Nyheter
Vill sälja
Om oss
Kontakter
More
Fastigheter
Utveckling
Nyheter
Vill sälja
Om oss
Kontakter
0
0
€
EUR
£
GBP
kr
SEK
CHF
CHF
₽
RUB
$
AUD
$
CAD
¥
JPY
$
USD
R$
BRL
¥
CNY
₹
INR
Real Estate
Aveiro, Santa Maria da Feira, Nogueira da Regedoura
Gå tillbaka
\
Real Estate - Aveiro, Santa Maria da Feira, Nogueira da Regedoura
Dela egendom
Facebook
X
Pinterest
WhatsApp
Kopiera länk
Link copiado
Skriva ut
Skicka bostad till en vän
Ange ett namn
Lägg in ett e-postmeddelande
Ange en giltig e-postadress
Ange ett namn
Lägg in ett e-postmeddelande
Ange en giltig e-postadress
Jag har läst och godkänt villkoren som har angivits.
Veta mer »
För att avsluta denna operation bör du läsa och godkänna våra villkor.
Obligatoriska fält *
skicka
foton
videoklipp
Byggdokument
Virtuell rundtur
Seguir imóvel
Seguir imóvel
Receba um alerta quando existir uma Baixa de Preço
namn
Insira o seu Nome
E-post
Ange din e-postadress
Ange en giltig e-postadress
Li e aceito a
integritetspolicy
För att avsluta denna operation bör du läsa och godkänna våra villkor.
Insätt koden från bilden
Koda
skicka
Real Estate, Aveiro, Santa Maria da Feira, Nogueira da Regedoura
200 000 €
Ref:
1122
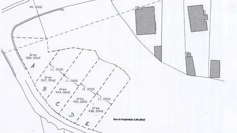
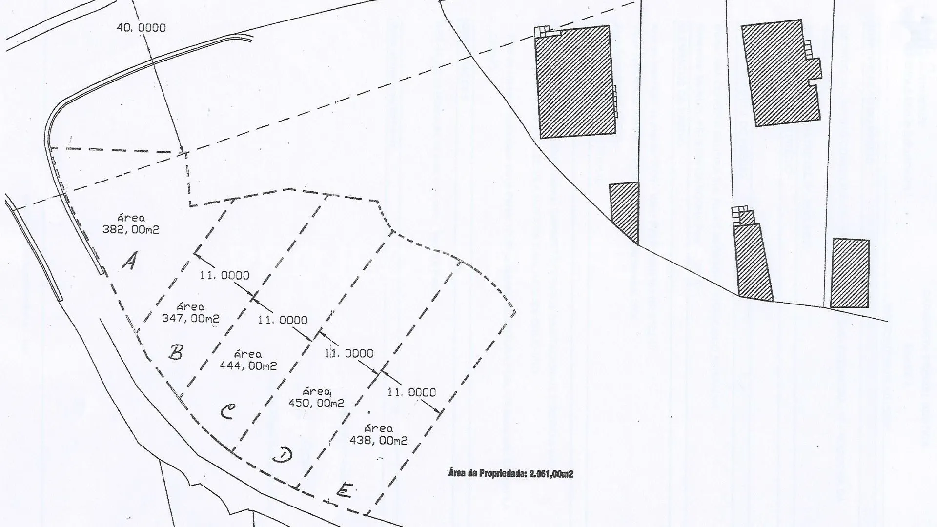
2061 m²
2061 m²
4 Lots of land for sale in Nogueira da Regedoura with great access to the highway, in a quiet residential area.
Plots for the construction of 10 apartments.
Excluded from the SCE, under article 4(f) of Decree-Law No. 118/2013 of 20 August
Intresserad av denna fastighet?
Datum
Time
namn
Ange ett namn
E-post
Lägg in ett e-postmeddelande
Ange en giltig e-postadress
Kontakta
Skriv in ditt telefonnummer
Meddelande
Jag begär mer information, utan några åtaganden, om fastigheten 1122
Jag har läst och godkänt villkoren som har angivits.
integritetspolicy
För att avsluta denna operation bör du läsa och godkänna våra villkor.
Koda
Insätt koden som visas i bilden.
skicka
Fastighets typ
Real Estate
Typologi
0 Rum
Mål
Sälja
Status
Inte tillgänglig
Pris
200 000 €
Byggår
Inte tillgänglig
Land
Portugal
distrikt
Aveiro
länet
Santa Maria da Feira
Socken
Nogueira da Regedoura
Zon
Perto de Espinho
Hemkredit och IMT-simulator
Kreditsimulator
IMT-simulator
Fastighetens värde*
Lånebelopp*
Din ålder*
Lånetid *
Månatlig avbetalning
0.00
€
Det angivna beloppet för avbetalning inkluderar inte livförsäkring och hemförsäkring.
Index
0.000
%
TAEG
0.000
%
Spread
0.000
%
Tid
0
anos
TAN
0.000
%
Simulera
Inserir aqui o disclaimer. Isto é apenas uma simulação. Esta simulação de crédito não tem fins lucrativos.
Fastighetens plats*
Välj
Kontinentala Portugal
Autonoma regioner
Finality*
Välj
Permanent egen bostad
Andrahandsboende eller uthyrning
Lantliga fastigheter
Övrigt
Fastighetens värde*
Kompletterande värden*
IMT
0.00
€
Stämpelskatt (0,8%)
0.00
€
Kompletterande värden
0.00
€
Totalt belopp att betala
0.00
€
Mais informações
Simulera
Inserir aqui o disclaimer. Isto é apenas uma simulação. Esta simulação de crédito não tem fins lucrativos.
Dados de Intermediação de Crédito - (Intermediário de Crédito nº )
Saiba mais sobre a sua simulação
namn
Campo obrigatório
E-post
Campo obrigatório
Insira um e-mail válido
Kontakta
Campo obrigatório
kommentarer
Isto é apenas uma simulação. Esta simulação de crédito não tem fins lucrativos.
Li e aceito a
integritetspolicy
För att avsluta denna operation bör du läsa och godkänna våra villkor.
Koda
Insätt koden som visas i bilden.
Enviar
Allmänna funktioner
Allmän
divisioner
divisioner
Område
Golv
väggar
tak
kommentarer
Miljö
Funktioner
Hemautomatisering
Förnybar energi
Se också
Aveiro, Santa Maria da Feira, Paços de Brandão
210 000 €
Fastighetsmark
210 000 €
Fastighetsmark
Aveiro, Santa Maria da Feira, Paços de Brandão
1700 m²
A. Land
Contactar
Aveiro, Santa Maria da Feira, Paços de Brandão
140 000 €
Fastighetsmark
140 000 €
Fastighetsmark
Aveiro, Santa Maria da Feira, Paços de Brandão
1270 m²
A. Land
Contactar
Aveiro, Santa Maria da Feira, Paços de Brandão
238 000 €
Fastighetsmark
238 000 €
Fastighetsmark
Aveiro, Santa Maria da Feira, Paços de Brandão
2246 m²
A. Land
Contactar
Fler egenskaper +
Vi är tillgängliga för att hjälpa dig
Jag vill bli kontaktad
Datum
Time
namn
Ange ett namn
E-post
Lägg in ett e-postmeddelande
Ange en giltig e-postadress
Kontakta
Insätt dina kontaktuppgifter
Meddelande
Li e aceito a
integritetspolicy
För att avsluta denna operation bör du läsa och godkänna våra villkor.
Koda
Insätt koden som visas i bilden.
skicka
O que é a pesquisa responsável
Esta pesquisa permite obter resultados mais ajustados à sua disponibilidade financeira.